Ultimora
31 Oct 2025 17:04
Disperso nel Veronese, si cerca esperto di costruzioni militari
31 Oct 2025 16:32
Gattamelata, al via analisi per restauro monumento equestre
31 Oct 2025 15:10
Clonato profilo Instagram del presidente Consiglio Veneto
31 Oct 2025 14:52
Endoscopia su signora di 98 anni senza intubazione nel veronese
31 Oct 2025 14:19
Cibi 'veri' e 'finti' in un saggio di Alessandro Franceschini
31 Oct 2025 13:47
Amministratore di sostegno sottrae 500mila euro a 19 anziani
31 Oct 2025 17:30
Il Wsj: 'Gli Usa pronti a colpire in Venezuela, individuati gli obiettivi'. Trump smentisce
31 Oct 2025 17:08
Italia sul podio mondiale nei trapianti, ma 8mila ancora in attesa
31 Oct 2025 17:04
Un banner dell'Unesco in difesa delle giornaliste minacciate
31 Oct 2025 16:59
Media britannici: 'Umiliazione finale per Andrea ma è arrivata tardi'
31 Oct 2025 14:31
La riapertura della Basilica di San Benedetto a Norcia
 Alessandro Tich
Alessandro Tich
Direttore Responsabile
Bassanonet.it
Esclusivo
Date a Felics quel che è di Felics
Ecco a voi il progetto di fattibilità per l’ampliamento del Caffè Italia, approvato dalla Soprintendenza, dell’architetto Felics Zanata, ingiustamente accusato un anno fa di aver copiato un precedente progetto
Pubblicato il 13-12-2021
		Visto 8.264 volte
		
			Ci sono momenti in cui bisogna fare un passo indietro, rianalizzare le cose e riconoscere i propri errori. Soprattutto per una professione come la mia, dove il dovere di rettifica è alla base della propria credibilità. È una rettifica che giunge a scoppio ampiamente ritardato - e cioè dopo oltre un anno - ma è solo adesso che ho avuto l’occasione di approfondire attentamente l’argomento che mi vede scrivere questo articolo altrettanto approfondito.  
Sto parlando del caso che nell’ottobre e novembre del 2020 ha visto coinvolto l’architetto Felics Zanata, noto e stimato professionista bassanese che era stato incaricato dal Comune di Bassano di redigere il progetto di fattibilità dell’ampliamento del Caffè Italia ai fini dell’ottenimento del parere della Soprintendenza. Parere favorevole che è stato ottenuto, ma che invece di produrre soddisfazione per lo storico risultato ha generato una situazione ai confini della realtà.  
		
 
		Ampliamento Caffè Italia, ipotesi finale, prospetto est
			Molti di voi ricorderanno le polemiche divampate all’epoca. Il 15 ottobre 2020 l’amministrazione comunale di Bassano, dopo avere ottenuto il parere favorevole della Soprintendenza, aveva diffuso un comunicato stampa e pubblicato un post sulla pagina Facebook del Comune annunciando quanto segue: “Sarà pronto entro l'anno il progetto esecutivo per l'ampliamento dello storico “Caffè Italia”. Lavori al via nel 2021.” 
L’annuncio del Comune - e questo è un dettaglio fondamentale - era corredato di alcuni render della famosa “vetrata esterna” prevista sul lato nord dell’edificio. 
La vera “bomba”, poi, era scoppiata il 3 novembre 2020 con un comunicato diffuso alle redazioni dal Circolo di Bassano del Grappa del Partito Democratico. 
Nella nota stampa, il PD aveva scoperto che i render diffusi dal Comune erano gli stessi di un precedente progetto di ampliamento del Caffè Italia, redatto nel 2010, sotto l’amministrazione Cimatti, dallo studio di architettura VS Associati di Marostica (lo stesso che, per la cronaca, si è aggiudicato l’attuale progetto di ampliamento dello storico locale) e poi bocciato dalla Soprintendenza.  
L’architetto Zanata - autore della progettazione che aveva invece ottenuto l’autorizzazione della Soprintendenza - era così finito nell’occhio del ciclone: accusato testualmente di avere “copia-incollato” il precedente progetto, additato alla pubblica critica dal fatto di essere il fratello dell’assessore comunale Mavì Zanata e ulteriormente esposto alla gogna mediatica dalla presunzione che, come scrisse il PD, “l’amministrazione Pavan si appresa a spendere 72.000 euro di spese tecniche per realizzare un progetto che già c’era”.
Legame di sangue con l’assessore a parte (che è un dato di fatto ma che è stato ampiamente strumentalizzato a fini politici), si tratta tuttavia di una serie di fake news grandi come una casa. 
In quel momento però non venivano percepite come tali.   
Prova ne sia il famoso consiglio comunale del 5 novembre 2020 in cui l’incarico all’arch. Zanata per il nuovo studio di fattibilità per l’ampliamento del Caffè Italia venne trafitto dalle pallottole verbali degli interventi dei consiglieri di minoranza. 
Si è trattato tuttavia di una raffica di accuse poggiate su basi inesistenti. 
E siccome all’epoca alla macchina del fango sparso sull’architetto Felics, a seguito del comunicato del PD, ho dato anch’io il mio contributo, è giunto finalmente il momento di dire e di spiegare come sono andate realmente le cose. 
Tutta questa storia inizia nel gennaio 2020, quando l’assessore ai Lavori Pubblici Andrea Zonta incontra l’arch. Felics Zanata e gli propone di elaborare il progetto di fattibilità per sottoporlo all’autorizzazione della Soprintendenza. Non perché fosse il fratello della collega di giunta Mavì Zanata, ma perché il professionista bassanese vantava una pluriennale esperienza proprio nei rapporti con la Soprintendenza stessa, con una importante serie di pareri favorevoli già portati a casa per altri progetti. 
Zanata accetta di essere della partita e pattuisce per l’incarico proposto la cifra quasi simbolica, rispetto alla mole di lavoro richiesta, di 4.950 euro (oltre oneri e Iva). 
L’incarico all’architetto - nella sua veste di responsabile della Zanata Group Engineering Srl, società da lui gestita assieme al fratello geom. Giampi Zanata - viene formalizzato il 24 febbraio 2020. 
Si tratta di una “sfida” non da poco: l’obiettivo è quello di convincere finalmente la Soprintendenza dopo decenni di tentativi falliti e almeno una mezza dozzina di progetti di ampliamento del Caffè Italia mai andati a buon fine. La progettazione a scopo approvazione della Soprintendenza, come scrive la determina di affidamento, si rende necessaria dopo che la giunta comunale aveva approvato con delibera dell’8/11/2919 “lo studio di fattibilità per l’ampliamento del Caffè Italia”.
Quello studio di fattibilità è l’unico pezzo di carta “tecnico” che l’arch. Zanata ha in mano all’inizio del suo lavoro: un documento di sole 4 pagine, firmato dal dirigente Area Lavori Pubblici del Comune ing. Walter Stocco e dal funzionario dott. geom. Diego Pozza, che propone il “volume esterno” di ampliamento del locale sul lato est dell’edificio, vale a dire su quella parte della terrazza del Caffè Italia che guarda verso il monumento del Generale Giardino. I quattro fogli del Comune contengono anche due render dell’ipotesi progettuale: ma su questi ritornerò alla fine di questo articolo.  
Da quell’unico pezzo di carta avuto dal Comune il professionista incaricato inizia la sua opera di revisione progettuale. Il progetto di fattibilità da lui realizzato verrà poi trasmesso dal Comune di Bassano alla Soprintendenza di Verona in data 11 agosto 2020. 
Il parere favorevole della Soprintendenza arriverà il 10 settembre 2020. Un “semaforo verde” non solo accesosi dopo decenni di bocciature, ma addirittura pervenuto dopo appena 29 giorni, sosta di Ferragosto compresa. Ma altro non sarebbe stato che il frutto del lavoro svolto da Zanata nei mesi precedenti: per buona parte del tempo, oltretutto, in pieno lockdown. Avendo a che fare regolarmente nella sua attività con la Soprintendenza, l’architetto Felics ha imparato negli anni a “pensare” come l’organo periferico del Ministero della Cultura. E sa benissimo che non può esserci alcuna autorizzazione se il progetto proposto per l’intervento su un bene culturale non è accompagnato da una adeguata analisi di tutti gli aspetti coinvolti: storico, filologico, normativo e quant’altro.  
Tra febbraio e marzo 2020 Zanata produce quindi una serie di elaborati preparatori. 
In primis l’analisi architettonica e storico-culturale del contesto interessato dall’intervento. 
Poi l’analisi filologica, che evidenzia come è cambiata e come si è “stratificata” l’area nel tempo, accanto all’analisi dei vincoli che insistono sulla stessa: tre vincoli monumentali sul Caffè Italia (ex “loggia del belvedere” cinquecentesca), sulla Torre delle Grazie e sul compendio e due vincoli paesaggistici sulla “bellezza panoramica” risalenti rispettivamente al 1927 e al 1959. 
L’architetto effettua quindi le indagini e ricerche preliminari sulla storia di ciascun elemento dell’area interessata. Di seguito, come da normativa, vengono elaborate le schede tecniche sui due beni monumentali vincolati (Caffè Italia e Torre delle Grazie) secondo i criteri stabiliti dalla Soprintendenza. Ma non è finita: il professionista esegue anche il rilievo dello stato di fatto e della planimetria generale del Caffè Italia, prima di concludere le analisi preliminari con lo studio dei flussi in primis pedonali ma anche veicolari nell’area “per capire se e quali flussi possano interferire o meno con l’ubicazione dell’ampliamento”. Sono i flussi che gli fanno capire che l’ampliamento “aggiuntivo” sulla terrazza ad est, di fronte alla statua del Generale, è improponibile. 
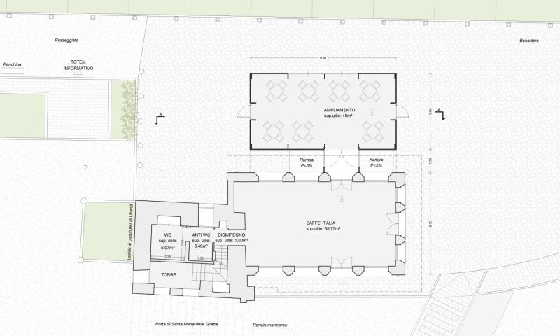
Tutto quanto sopra esposto porta alla redazione, trasmessa alla Soprintendenza il 25 marzo 2020, della prima proposta progettuale, che colloca l’ampliamento sul lato nord e non più sul lato est del locale, come era stato previsto dal primo studio di fattibilità dei Lavori Pubblici del Comune. 
Le linee guida dell’arch. Zanata sono quelle di un progetto reversibile e gerarchicamente subalterno al bene oggetto di ampliamento: ciò significa che il nuovo volume da aggiungere all’edificio del Caffè deve essere staccato dallo stesso, autonomo e indipendente e che non deve “soverchiare” per dimensioni il corpo di fabbrica originario. Viene proposta una struttura completamente in vetro, secondo la metodica del glass fin, che Zanata concepisce con la collaborazione dell’ing. Christian Ceccato, progettista tra i più rinomati di vetro strutturale. La pianta del volume di ampliamento è “regolare e austera” e quindi rettangolare, mentre la copertura si concede alle tendenze dell’architettura contemporanea e viene proposta “ad ali di uccello”. 
Il 9 aprile 2020, in videoconferenza, la Soprintendenza accoglie la proposta ma con due osservazioni: il tetto deve essere “a copertura piana” e l’ampliamento “in aderenza”, e cioè “attaccato” al Caffè Italia e non staccato dall’edificio storico. A fine aprile Felics Zanata presenta la seconda proposta progettuale secondo le prescrizioni ricevute, ma riesce a convincere la Soprintendenza circa le “criticità” di un ampliamento attaccato al muro nord del Caffè: andrebbe rimossa la targa dedicata a George Sand e verrebbe coperta la cornice a cassettoni realizzata dall’arch. Bonfanti. 
Detto, fatto: la Soprintendenza comunica al professionista il proprio benestare all’ipotesi del progetto di un volume di ampliamento “staccato” dal resto del Caffè. Sembra ormai tutto quasi fatto per il parere di autorizzazione. E invece…
E invece succede il “non previsto”. A fine maggio, di punto in bianco, l’amministrazione comunale chiede di studiare un’idea per realizzare uno spazio adibito a magazzino per il Caffè Italia all’interno della Torre delle Grazie. Ai primi di giugno la Soprintendenza compie un sopralluogo e alla fine - e qui vi ometto tutti gli altri passaggi e un’ulteriore proposta progettuale intermedia - viene trovata assieme al progettista la soluzione. 
Viene ripristinato il preesistente passaggio di collegamento tra il Caffè Italia e la Torre, che era stato chiuso con il cartongesso; eliminati gli attuali bagni all’interno del Caffè col ripristino dello spazio unico della antica loggia; ricavati al piano terra della Torre un piccolo bagno, reversibile e accessibile ai disabili, e un antibagno; garantito l’accesso dalle scale della Torre al piano interrato da adibire a magazzino. Una soluzione che rende “autonoma” la fruizione della Torre per altri scopi, come gli eventi culturali, con un proprio accesso indipendente ad ovest. 
Morale della favola: il 30 luglio 2020 l’arch. Felics Zanata protocolla in Comune di Bassano  tutto l’incartamento della soluzione progettuale definitiva da sottoporre al parere della Soprintendenza. C’è tutto il “sunto” di quanto raccontato sopra: il volume di ampliamento collocato a nord del locale, staccato dall’edificio storico del Caffè e quindi reversibile, di pianta rettangolare e tetto piano, realizzato in lastre di glass fin con tutta l’impiantistica incorporata e l’illuminazione a led e con la soluzione già descritta per la realizzazione del bagno e del magazzino rispettivamente al piano terra e nel seminterrato della Torre. La relazione progettuale comprende anche un quadro sommario di spesa per l’intervento originariamente stimato in 220.000 euro: il nuovo quadro economico di stima ammonta a 295.000 euro, che sommati ad Iva, oneri di legge vari eccetera raggiungono la nota cifra di 440.000 euro. 
Zanata ottiene nel frattempo anche il parere igienico-sanitario favorevole dell’Ulss 7, richiesto il 10 agosto e ottenuto il 12 agosto: pratica per la quale concorda col Comune un’integrazione di corrispettivo di ulteriori 1500 euro. L’11 agosto, come già scritto, il Comune invia la progettazione alla Soprintendenza, che il 10 settembre esprime il proprio parere favorevole. 
Ce n’è quanto basta per stappare lo spumante: ma non andrà così.  
E qui torniamo al punto da cui abbiamo iniziato. Il 15 ottobre 2020 l’amministrazione comunale annuncia l’avvio dell’iter del progetto esecutivo dell’ampliamento e pubblica le foto dei render. 
Ma quei render non sono dell’architetto Felics Zanata perché l’intera sua progettazione presentata in Soprintendenza è priva di render, non richiesti dall’organo del Ministero e non previsti in progetto.   
I render diffusi dal Comune sono quelli del vecchio progetto della VS Associati di Marostica, due dei quali erano persino riprodotti anche nel primo studio di fattibilità degli uffici comunali firmato dall’ing. Stocco e dal dott. geom. Pozza. 
I vecchi rendering spacciati per nuovi vengono diffusi all’insaputa dell’arch. Zanata che - totalmente incolpevole - finisce al centro degli attacchi politici e mediatici sul suo presunto “copia-incolla” del precedente progetto, senza che lui stesso abbia mai avuto la possibilità fino ad allora di presentare e di spiegare il suo progetto in commissione consiliare, alla giunta comunale e al sindaco. 
Una situazione infamante che lo ha disorientato per mesi, professionalmente danneggiato e personalmente scosso: il suo è stato un lavoro eseguito in totale autonomia progettuale, non ha mai fatto il “copia-incolla” di un vecchio progetto peraltro già bocciato dalla Soprintendenza e quindi non riproponibile, non ha mai preso i 70.000 euro prefigurati dal PD. Ma non ha mai tirato per la giacca i giornalisti per gridare al mondo che tutto quanto scritto su di lui non era vero. Grazie ad un comune amico, soltanto adesso ho scoperto la verità che sta dietro a questa storia, l’architetto Zanata ha accettato di parlarmene con tutte le carte e i documenti sul tavolo e io lo ho ascoltato con attenzione. Perché dobbiamo dare a Felics quel che è di Felics. 
Qui termina la lunga e articolata rettifica che gli dovevo. Io scrivo per me, gli altri rispondano alla propria coscienza. 
Per il resto, e in conclusione, il vostro umile cronista non può fare a meno di notare che l’attuale progetto definitivo e non ancora esecutivo dell’ampliamento del Caffè Italia - l’opera che doveva “prendere il via nel 2021” - prevede un volume di ampliamento esterno che è “tutt’altra cosa” rispetto alla struttura approvata dal parere autorizzativo favorevole della Soprintendenza del settembre del 2020. Ma questa, egregi lettori, è un’altra storia. 
		
Il 31 ottobre
- 31-10-2024Venerdì Destra
- 31-10-2023HalloBridge
- 31-10-2023Sinistra Brenta
- 31-10-2022Borgo Zucca
- 31-10-2020Uàn is megl' che two
- 31-10-2020Povera Italia
- 31-10-2019È qui la Fiesta
- 31-10-2019Fratelli di Silvia
- 31-10-2019Profondo Rosso
- 31-10-2016Non ti scordar di me
- 31-10-2016Vice, che dice?
- 31-10-2014Acconciati per le feste
- 31-10-2013“Pronto, Sammy? Ciao, sono Papa Francesco”
- 31-10-2013Turismo, licenziate le operatrici dell'Ufficio Iat
- 31-10-2013I veleni di Borgo Berga
- 31-10-2012La bottega delle idee
- 31-10-2012Zonta Revolution, parte II
- 31-10-2012Occhi aperti sulla ZTL
- 31-10-2011Baby 7 miliardi
- 31-10-2010Sballoween
Più visti
Attualità
21-10-2025
Syncro System celebra 65 anni di attività con una giornata di festa
Visto 11.563 volte







