Ultimora
18 Nov 2025 20:25
Meloni, sinistra avvelena i pozzi e strumentalizza Falcone
18 Nov 2025 20:02
Meloni, in Veneto grande energia per staffetta Zaia-Stefani
18 Nov 2025 18:44
Omologato ufficialmente lo Sliding Centre di Cortina d'Ampezzo
18 Nov 2025 17:55
Alpini Taurinense si esercitano in montagna tra Fvg e Veneto
18 Nov 2025 16:55
Demanio, San Giorgio per altri 50 anni alla Fondazione Cini
18 Nov 2025 16:11
Bus con studenti nel fosso dopo lo scontro con un'auto
19 Nov 2025 00:22
Gli Stati Uniti approvano l'invio di nuove armi all'Ucraina per 105 milioni di dollari
19 Nov 2025 00:16
Trump difende bin Salman: 'Di Khashoggi non sapeva nulla'
19 Nov 2025 00:10
Cadavere di un bimbo di otto anni in casa nel Salento
19 Nov 2025 00:06
Cadavere di un bimbo di otto anni trovato in casa nel Salento
19 Nov 2025 00:04
Il Congresso Usa approva legge per divulgare i file di Epstein. Trump insulta una giornalista: 'Zitt
18 Nov 2025 22:17
Rubano un bancomat e lo trascinano via con l'auto nel Napoletano
Alessandro Tich
Direttore Responsabile
Bassanonet.it
Incontro di box
Il mondo “sotterraneo” del nuovo Tribunale. Le insegnanti della primaria Pascoli ottengono dal Comune di poter utilizzare il parcheggio nel piano interrato ma lo spazio è già in parte occupato dalle auto del servizio messi e uscieri comunali
Pubblicato il 15-04-2025
Visto 10.608 volte
È un incontro di box quello che riguarda il piano interrato dell’edificio del nuovo Tribunale di via Marinali, adibito fino alla fine del presente anno scolastico a sede provvisoria della scuola primaria Pascoli.
Niente ring e niente gong, però: si tratta di box auto.
Una questione che ci dà la possibilità di scoprire il mondo “sotterraneo” del palazzo che è stato costruito con destinazione giudiziaria.
In attesa dell’uscita degli scolari della primaria Pascoli (foto Alessandro Tich)
Come ben sappiamo, l’area della cosiddetta Cittadella della Giustizia è tanto centrale quanto poco accessibile dal punto di vista dei parcheggi nelle immediate vicinanze.
Proprio per questo il progetto del nuovo Tribunale ha previsto la realizzazione di un parcheggio interrato, al piano – 1 della struttura, che era stato principalmente riservato ai mezzi del personale giudiziario del Tribunale che ancora non c’è.
Fatto sta che nelle scorse settimane, da parte dell’Istituto Comprensivo n. 3 di Bassano del Grappa e nella fattispecie delle insegnanti e le collaboratrici scolastiche della scuola primaria Pascoli, è stato richiesto all’assessorato comunale all’Istruzione di valutare la possibilità di poter usufruire del parcheggio interrato medesimo durante l’orario scolastico e cioè dal lunedì al venerdì dalle 7:30 alle 18.30.
La giunta comunale, con apposita delibera, ha preso atto della “difficoltà del personale scolastico di reperimento parcheggi in centro storico” e della “correlata necessità di garantire puntualità e sicurezza nello svolgimento del servizio educativo”.
L’amministrazione ha pertanto accolto la richiesta dell’Istituto Comprensivo che potrà quindi usufruire dell’autorimessa dell’edificio giudiziario, ma limitatamente ai posti a disposizione.
Come si evince dalla delibera di giunta, il garage del nuovo Tribunale è infatti già in parte occupato dalle auto del servizio messi e uscieri comunali, con le quali gli automezzi delle insegnanti e delle collaboratrici scolastiche dovranno “convivere”.
Non si tratta, peraltro, di un’autorimessa capiente (per usare un eufemismo) ma commisurata alle dimensioni dell’edificio e al personale giudiziario e amministrativo che era stato previsto a Bassano prima del 2012.
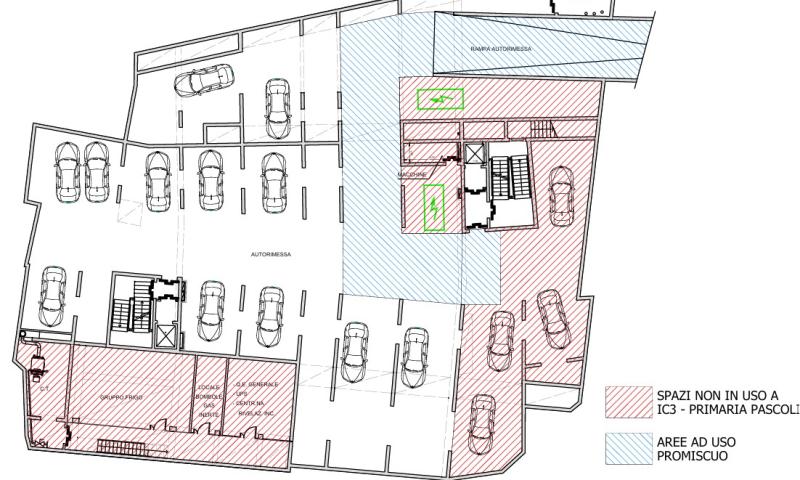
Dalla planimetria allegata alla delibera di giunta, che pubblichiamo in calce a questo articolo, si contano infatti e in tutto una ventina di box auto.
L’amministrazione Finco, come si legge nel documento, rileva pertanto che “il suddetto parcheggio è attualmente utilizzato in quota parte per posteggio automezzi del Comune di Bassano del Grappa - Ufficio Messi e Uscieri” e che “ogni utilizzo da parte dell’Istituto Scolastico dovrà necessariamente tenere conto dei rischi di interferenza con l’utilizzo del medesimo primo piano interrato da parte di personale comunale”.
Questo è, in sostanza, l’incontro di box: fino a esaurimento posti.
Tuttavia, la parte più interessante della delibera di giunta non riguarda direttamente l’argomento dell’utilizzo promiscuo del garage interrato al piano – 1 dell’edificio.
Oltre alla planimetria dell’autorimessa, allegate alla delibera ci sono infatti anche le planimetrie dei tre piani sopra terra (pianterreno e due piani sopraelevati) del nuovo Tribunale, con l’esatta indicazione della destinazione giudiziaria di tutte le stanze e aule in progetto.
Si tratta di un autentico scrigno di dati oggettivi sulla distribuzione del personale di quello che all’epoca - prima della soppressione del 2012 e conseguente accorpamento al Tribunale di Vicenza - avrebbe dovuto essere il nuovo Tribunale di Bassano del Grappa, da mettere in raffronto con la pianta organica che è invece prevista per il Tribunale della Pedemontana.
Ma questo, egregi lettori, sarà oggetto di una futura puntata della nostra infinita Tribunovela.
Più visti
Elezioni Regionali 2025
14-11-2025
Andrea Nardin: “Mi propongo non per quello che prometto ma per quello che ho fatto”
Visto 11.869 volte
Attualità
15-11-2025
PFAS Pedemontana: Vicenza Istituisce il Comitato Provinciale di Coordinamento
Visto 8.710 volte
Elezioni Regionali 2025
16-11-2025
Renzo Masolo: “Il mio impegno è quello di fare comunità”
Visto 7.935 volte
Elezioni Regionali 2025
10-11-2025
Elena Pavan: “Sono pronta a rimettermi in gioco”
Visto 19.979 volte







